George and Nancy Putnam Learning Center

Beverly, MA

As part of a larger initiative to revitalize Long Hill in Beverly, MA, The Trustees engaged LDa to reimagine the lower portion of the property as a new Horticultural Learning Campus. A key component of this project is the expansion and renovation of a historic farmhouse, now home to the Nancy and George Putnam Learning Center. The Center provides visitors with dynamic opportunities to engage with horticulture and contemporary gardening practices.

Respecting historic character

Originally built around 1900, the farmhouse served as the foundation for the project. The Trustees’ design goal was to expand the building in a way that remained cohesive with the historic structure—carefully considering both materiality and scale—while preserving the integrity of the street-facing façade.

Trustees Long Hill_Perspective
Trustees Long Hill_Before
Before

Accessible arrival and entry

To achieve this, LDa designed a new wing extending behind the farmhouse, creating an L-shaped plan. This addition introduced a fully accessible entrance, reorienting how visitors approach and enter the building, and connects seamlessly with the new parking area.

Trustees Long Hill_Outdoor Right Side Entry
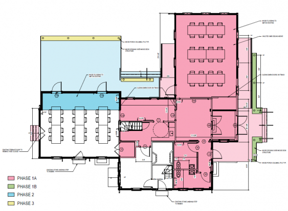
Trustees Long Hill plan

Creating an accessible learning space

The centerpiece of the addition was a 560-square-foot classroom—a bright, airy environment with vaulted ceilings and generous windows that filled the space with natural light. Alongside this expansion, the existing farmhouse was updated to include accessible restrooms and to address long-deferred maintenance needs.

Trustees Long Hill_ Kitchen_portrait
Trustees Long Hill_Classroom Chalk Board

Growth and adaptability

Future components of this phased effort will involve renovating an existing workshop space, adding a new accessible office to the first floor, renovating the building’s second floor, and creating an outdoor classroom in the partially enclosed yard resulting from the new L-shaped footprint.

Trustees Long Hill_Outdoor Entry Detail
Trustees Long Hill_Outdoor Left Side Entry

Project Team

Architect LDa Architecture & Interiors

Photographer Greg Premru

Ready to work together?

Contact us